83
$1,690,000 Sale
Listed 3 hours ago
6655 Cosens Bay Road
· 7
· 4.5
· 8
· 5613
Key Facts
Key facts for 6655 Cosens Bay Road
Property Type
House, House
Parking
Garage: Yes, 8 parking
MLS #
10364722
Size
5613 sqft
Basement
Full
Listed on
-
Lot size
-
Tax
-
Days on Market
-
Year Built
1992
Maintenance Fee
-
Description
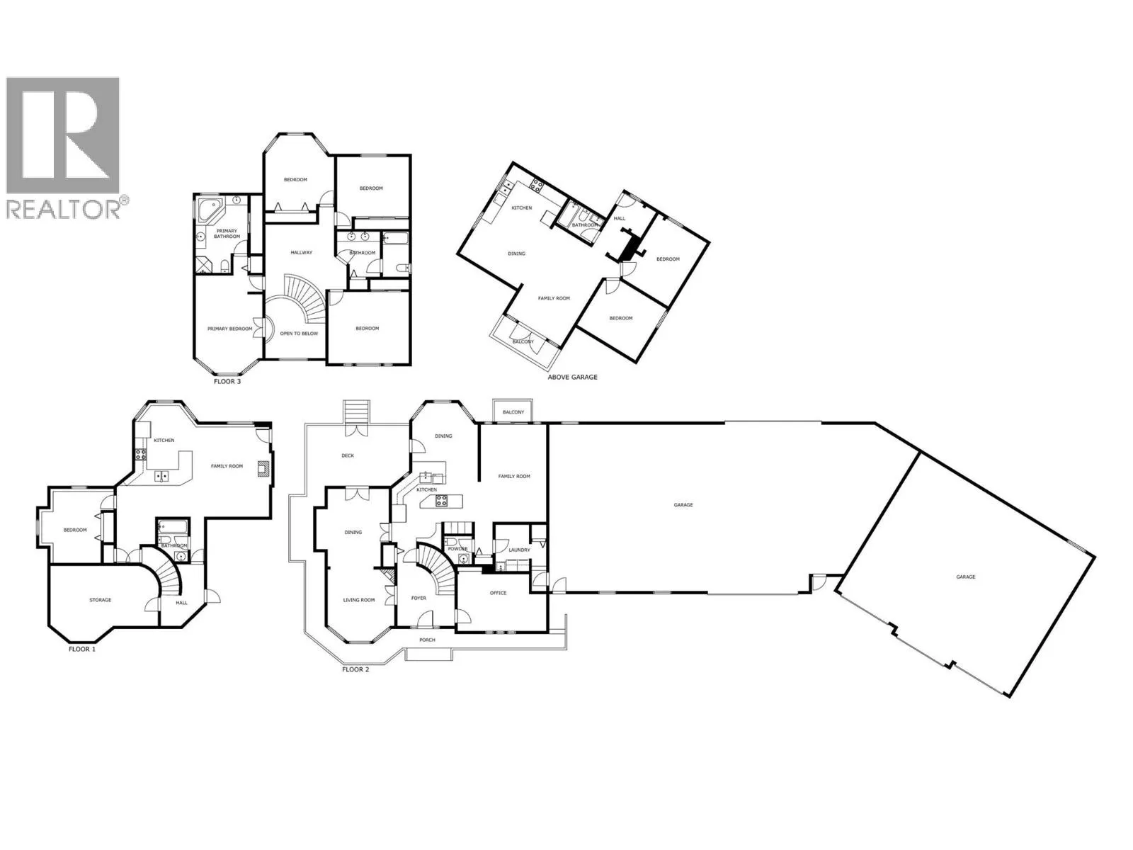
Expansive Multi-Generational Home on 5.3 Acres – With Garage & Shop Space to Spare! Looking for space, privacy, and flexibility for your entire family—plus room for all your vehicles and toys? This extraordinary 5.3-acre property offers a rare opportunity to live and play in one of the Okanagan’s mo...st desirable areas. This thoughtfully designed home features three separate living areas, making it ideal for multi-generational living and guest accommodations. With 7 bedrooms + an office and 4.5 bathrooms in total, there’s room for everyone to spread out in comfort. Main Residence Highlights: Spacious kitchen with stunning Brazilian granite countertops and seamless access to the deck. Family room, dining room, living room, office, laundry room. 4 bedrooms and 2.5 bathrooms, offering functional and flexible living. Additional Living Spaces: 1-bed, 1-bath basement suite with a private entrance—perfect for in-laws or guests. 2-bed, 1-bath loft suite above the garage with separate entrance—ideal for extended family. Unmatched Garage & Shop Space. Bring your cars, RVs, boats, and tools—this property includes an oversized garage/shop setup with room for multiple vehicles and all your projects. Outdoor Features: Fully fenced paddocks for horses, a barn, and a chicken coop. Enjoy country-style living just minutes from town. Just a short stroll to Kal Provincial Park, where you’ll enjoy hiking and biking trails that lead to the sandy shores of Cosens Bay. (id:10452)
Similar Properties (No results)
Room Types
3pc Bathroom
-
Dimensions 5' x 8'5''
42.08 sqft
4pc Bathroom
-
Dimensions 8' x 11'
88 sqft
5pc Ensuite bath
-
Dimensions 10'6'' x 15'6''
162.75 sqft
Listing courtesy of: RE/MAX Vernon
This REALTOR.ca listing content is owned and licensed by REALTOR® members of The Canadian Real Estate Association.